Novita Housing

Murray Bridge

This house, in a desirable location in Murray Bridge, includes a wide entrance front door and internal doorways, as well as stepless entries ideal for wheelchair access. 2 large bedrooms, 1 carer/support worker room, and 2 bathrooms/en-suite with rear living area make this an ideal next home for someone looking to increase their independence.

1
3
2
1
Occupants 2
Number of Vacancies 2
Details
Pet-friendly
All Wheelchair access
More From Housing

You might also like

Campbelltown House Front with brown brick and white rendered features
Campbelltown back garden
Campbelltown dining room and sliding door open to back garden
Campbelltown bedroom with wide door for access
Campbelltown lounge room
Campbelltown bathroom
Campbelltown wheelchair accessible kitchen

Campbelltown

Located in Campbelltown, this home is conveniently situated close to shopping centres, allowing you to easily access a wide range of amenities, including grocery stores, restaurants, and more. Everything you need is just a short distance away, making daily errands a breeze.

The spacious kitchen is a culinary enthusiast’s dream, boasting ample counter space, sleek appliances, and abundant storage options.

With a thoughtfully designed layout, this house offers a great flow between the living spaces, allowing you to enjoy your own space.

The bedroom features an accessible ensuite and is also equipped with a built-in robe, offering ample storage for your belongings.

1
3
1
1
Occupants 3
Number of Vacancies 1
Details
High Physical Support
All Wheelchair access
Murray Bridge House Front view
Murray Bridge House open plan living area and kitchen
Murray Bridge House Large Bedroom
Murray Bridge House Large second Bedroom
Murray Bridge House spacious and accessible bathroom
Murray Bridge House floor plan

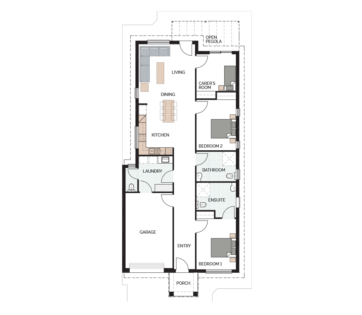
Murray Bridge

Novita Housing designs and builds fully accessible homes for people living with disability. This house, in a desirable location in Murray Bridge, includes a wide entrance front door and internal doorways, as well as stepless entries ideal for wheelchair access. 2 large bedrooms, 1 carer/support worker room, and 2 bathrooms/ensuite with rear living area make this an ideal next home for someone looking to increase their independence.

1
3
2
1
Occupants 2
Number of Vacancies 1
Details
Pet-friendly
All Wheelchair access
Murray Bridge House with charcol coloured brick and cream protico
Murray Bridge House accessible kitchen and dining area with large window
Murray Bridge House open plan living room with wide hallway leading to front door
Murray Bridge House single bedroom with desk and textured artwork
Murray Bridge House large accessible bathroom
Murray Bridge House Floorplan

Murray Bridge

Our aim is to provide you with a home that meets your unique needs now and into the future. This house, in a desirable location in Murray Bridge, includes a wide entrance front door and internal doorways, as well as stepless entries ideal for wheelchair access. 1 large bedroom, 1 carer/support worker room, and 1 bathroom with rear living area make this an ideal next home for someone looking to increase their independence.

1
2
1
1
Occupants 1
Number of Vacancies 1
Details
Pet-friendly
All Wheelchair access